Wenn "Standard" keine Option ist – Bohle Shower Designer
Einfach & Intuitiv
Die Bedienung ist bewusst einfach gehalten, sodass kein CAD-Wissen notwendig ist. Durch die interaktive 3D-Ansicht wird die Planung anschaulich, auch wenn es um komplizierte Maße oder Sonderformen geht.
Flexibel & Individuell
Auch Besonderheiten wie Dachschrägen, unebene Wände oder außergewöhnliche Maße können direkt eingeplant werden, sodass selbst komplexe Situationen zuverlässig abgebildet werden.
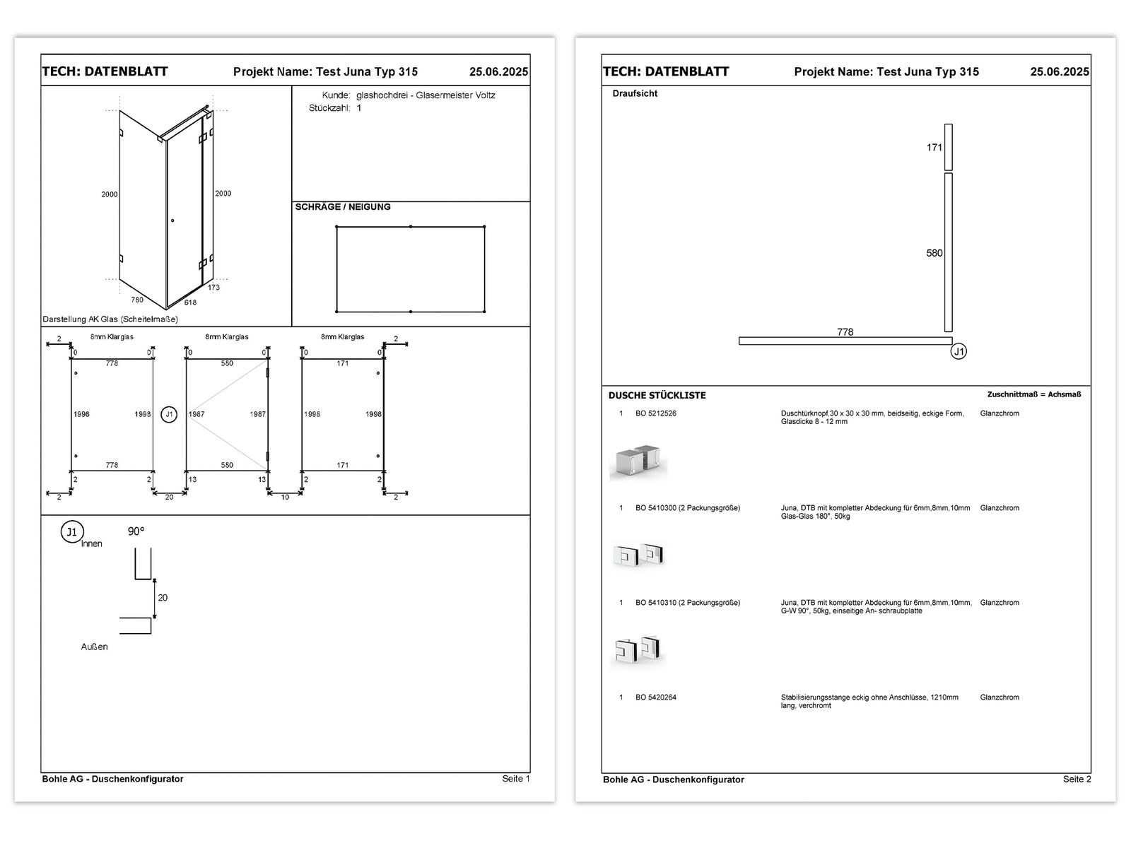
Daten & Dokumente
Alle relevanten Daten – von DXF-Dateien über Glaszeichnungen bis hin zu Montagehinweisen – werden automatisch erstellt. Das bedeutet, dass Sie ohne Nacharbeit direkt mit Fertigung oder Einbau fortfahren können.
Mobil & Webbasiert
Da das Tool komplett webbasiert ist, entfallen Installation und Updates. Sie öffnen einfach den Browser und können sofort loslegen.
3D Live-Visualisierung
Projektinformationen & Installationshinweise
Zu jeder Planung gehören automatisch die passenden Projektinformationen. Exakte Glasmaße, vollständige Stücklisten und hilfreiche Montagehinweise werden sofort bereitgestellt. Diese Daten lassen sich ohne Umwege für Bestellung, Fertigung und Einbau nutzen, wodurch Rückfragen oder zusätzliche Abstimmungen kaum noch notwendig sind.
Vorlagenbibliothek
Live-Angebotserstellung
Teaser
Mit unserem Teaservideo erhalten Sie einen ersten Einblick, wie Sie Duschen schnell, effizient und individuell gestalten können – starten Sie jetzt in die Zukunft der Duschplanung.
Anwendungsvideo
Erfahren Sie in diesem Anwendungsvideo alle Grundlagen zum Bohle Shower Designer und gestalten Sie gemeinsam mit uns ihre erste Dusche.
Von der Planung bis zum Angebot – alles in einem Klick.
Sie sind noch kein Bohle-Kunde?
Werden Sie jetzt Kunde und nutzen Sie den Bohle Shower Designer sowie alle Vorteile des B2B-Shops, um Ihre Duschen noch einfacher, schneller und effizienter zu gestalten.
Jetzt anmeldenSie haben bereits Zugang zum Bohle Shower Designer?
Loggen Sie sich jetzt ein und planen Sie Ihre Dusche direkt online – einfach, komfortabel und ganz nach Ihren Vorstellungen.
Sie sind bereits Bohle Kunde haben jedoch noch keinen Zugang zum Bohle Shower Designer?
Registrieren Sie sich jetzt und nutzen Sie die Vorteile des Bohle Shower Designers. Planen Sie Ihre Dusche direkt online – einfach, komfortabel und ganz nach Ihren Vorstellungen.
Kundenanfrage Shower Designer
Was ist der Bohle Shower Designer?
Der Duschenkonfigurator ist ein professionelles, webbasiertes Online-Planungstool. Damit können Sie Duschabtrennungen, Glasduschen, Glaswände und andere Glasprojekte digital konfigurieren – einfach, schnell und millimetergenau. Das Tool erstellt automatisch technische Zeichnungen, Stücklisten und Angebote und unterstützt Sie so bei Planung, Beratung und Bestellung.
Der Duschenkonfigurator ist ein professionelles, webbasiertes Online-Planungstool. Damit können Sie Duschabtrennungen, Glasduschen, Glaswände und andere Glasprojekte digital konfigurieren – einfach, schnell und millimetergenau. Das Tool erstellt automatisch technische Zeichnungen, Stücklisten und Angebote und unterstützt Sie so bei Planung, Beratung und Bestellung.
Wie läuft die Registrierung für den Bohle Shower Designer ab?
Der Registrierungsprozess hängt davon ab, ob Sie bereits Bohle-Kunde sind oder nicht:
Wenn Sie bereits Bohle-Kunde sind:
Wir legen für Sie nach der Registrierung automatisch einen Zugang zum Shower Designer an. Dazu übermitteln wir Ihre Kundendaten an unsere Partnerplattform Smart Glazier, über die der Shower Designer läuft. Anschließend erhalten Sie von Ihrem persönlichen Außendienstmitarbeiter die Zugangsdaten und können direkt starten.
Wenn Sie noch kein Bohle-Kunde sind:
Zunächst können Sie sich hier als Kunde bei Bohle registrieren. Dabei prüfen wir, ob ein Bedarf für unsere Lösungen besteht. Falls ja, legen wir Sie als Kunden an, geben Ihre Daten an Smart Glazier weiter und Sie erhalten von Ihrem Außendienstmitarbeiter die Zugangsdaten für den Shower Designer. Sollte kein Bedarf festgestellt werden, informiert Sie Ihr Außendienstmitarbeiter per E-Mail über die Absage.
Der Registrierungsprozess hängt davon ab, ob Sie bereits Bohle-Kunde sind oder nicht:
Wenn Sie bereits Bohle-Kunde sind:
Wir legen für Sie nach der Registrierung automatisch einen Zugang zum Shower Designer an. Dazu übermitteln wir Ihre Kundendaten an unsere Partnerplattform Smart Glazier, über die der Shower Designer läuft. Anschließend erhalten Sie von Ihrem persönlichen Außendienstmitarbeiter die Zugangsdaten und können direkt starten.
Wenn Sie noch kein Bohle-Kunde sind:
Zunächst können Sie sich hier als Kunde bei Bohle registrieren. Dabei prüfen wir, ob ein Bedarf für unsere Lösungen besteht. Falls ja, legen wir Sie als Kunden an, geben Ihre Daten an Smart Glazier weiter und Sie erhalten von Ihrem Außendienstmitarbeiter die Zugangsdaten für den Shower Designer. Sollte kein Bedarf festgestellt werden, informiert Sie Ihr Außendienstmitarbeiter per E-Mail über die Absage.
Wie erhalte ich Zugang zum Konfigurator?
Als registrierter Bohle-Kunde können Sie den Duschenkonfigurator kostenfrei nutzen. Den Zugang beantragen Sie über Ihren Bohle-Ansprechpartner oder per E-Mail an info@bohle.at. Nach Prüfung Ihrer Firmendaten senden wir Ihnen Ihre persönlichen Login-Daten zu.
Sie sind noch kein Bohle-Kunde?
Werden Sie jetzt Kunde und nutzen Sie den Bohle Shower Designer sowie alle Vorteile des B2B-Shops, um Ihre Duschen noch einfacher, schneller und effizienter zu gestalten:
Als registrierter Bohle-Kunde können Sie den Duschenkonfigurator kostenfrei nutzen. Den Zugang beantragen Sie über Ihren Bohle-Ansprechpartner oder per E-Mail an info@bohle.at. Nach Prüfung Ihrer Firmendaten senden wir Ihnen Ihre persönlichen Login-Daten zu.
Sie sind noch kein Bohle-Kunde?
Werden Sie jetzt Kunde und nutzen Sie den Bohle Shower Designer sowie alle Vorteile des B2B-Shops, um Ihre Duschen noch einfacher, schneller und effizienter zu gestalten:
Ist die Nutzung kostenpflichtig?
Nein, als registrierter Bohle-Kunde nutzen Sie den Konfigurator kostenlos.
Nein, als registrierter Bohle-Kunde nutzen Sie den Konfigurator kostenlos.
Muss ich eine Software installieren?
Nein. Der Bohle Shower Designer ist 100 % webbasiert. Sie benötigen lediglich:
- einen aktuellen Internetbrowser (z. B. Chrome, Firefox, Edge)
- eine stabile Internetverbindung
Software-Installationen oder Updates sind nicht erforderlich.
Nein. Der Bohle Shower Designer ist 100 % webbasiert. Sie benötigen lediglich:
- einen aktuellen Internetbrowser (z. B. Chrome, Firefox, Edge)
- eine stabile Internetverbindung
Welche Funktionen bietet der Bohle Shower Designer?
Mit dem Smart Glazier Connect Konfigurator können Sie u. a.:
- Duschen, Glasabtrennungen und Glasprojekte planen (Standard- und Sondermaße)
- Technische Zeichnungen (PDF/DXF) automatisch erstellen lassen
- Glasstärken, Beschläge und Zubehör individuell auswählen
- Angebote mit Preisen & Stücklisten generieren
- Ihre Bestellung direkt an Bohle übermitteln
Damit haben Sie Planung, Kalkulation und Bestellung in einem einzigen Tool.
Mit dem Smart Glazier Connect Konfigurator können Sie u. a.:
- Duschen, Glasabtrennungen und Glasprojekte planen (Standard- und Sondermaße)
- Technische Zeichnungen (PDF/DXF) automatisch erstellen lassen
- Glasstärken, Beschläge und Zubehör individuell auswählen
- Angebote mit Preisen & Stücklisten generieren
- Ihre Bestellung direkt an Bohle übermitteln
Kann ich meine Projekte speichern und später weiterbearbeiten?
Ja. Ihre geplanten Projekte werden in Ihrem Benutzerkonto gespeichert. Sie können jederzeit darauf zugreifen, Änderungen vornehmen oder eine frühere Version erneut abrufen.
Ja. Ihre geplanten Projekte werden in Ihrem Benutzerkonto gespeichert. Sie können jederzeit darauf zugreifen, Änderungen vornehmen oder eine frühere Version erneut abrufen.
Wie sicher sind meine Daten?
Die Datensicherheit hat höchste Priorität. Ihre Daten werden passwortgeschützt, verschlüsselt und DSGVO-konform verarbeitet.
Die Datensicherheit hat höchste Priorität. Ihre Daten werden passwortgeschützt, verschlüsselt und DSGVO-konform verarbeitet.
Gibt es Anleitungen oder Schulungen?
Ja. Direkt im Konfigurator stehen Ihnen Schritt-für-Schritt-Anleitungen, Tutorials und Video-Guides zur Verfügung.
Auf Wunsch bieten wir außerdem persönliche Einführungen oder Schulungen für Ihr Team an.
Ja. Direkt im Konfigurator stehen Ihnen Schritt-für-Schritt-Anleitungen, Tutorials und Video-Guides zur Verfügung. Auf Wunsch bieten wir außerdem persönliche Einführungen oder Schulungen für Ihr Team an.